B
gallery-1
gallery-2
gallery-3
gallery-4
38
Beschikbaar

Markt 4A

4841 AC Prinsenbeek
€ 1.100.000,- k.k.
Plattegronden
Bekijk video
Download brochure
Plan bezichtiging

Over dit huis

Let op: deze bovenwoning wordt verkocht tezamen met de commerciële ruimte op de begane grond, zie tekst hieronder.
Afzonderlijke koop is niet mogelijk.
De vraagprijs van de bovenwoning is € 500.000,= en van de commerciële ruimte bedraagt de vraagprijs € 600.000,=.

Stijlvol wonen in hartje Prinsenbeek – 137 m² comfort met riant dakterras!

Wonen in het gezellige centrum van Prinsenbeek?
Dat kan in deze charmante bovenwoning met maar liefst 137 m² woonplezier! Deze sfeervolle woning beschikt over drie slaapkamers, een lichte woonkamer met open keuken en als kers op de taart: een groot dakterras van 30 m² waar je in alle rust van de zon kunt genieten.

Dankzij de centrale ligging zijn winkels, horeca en openbaar vervoer op loopafstand. Of je nu starter bent, samen gaat wonen of gewoon op zoek bent naar een fijne plek in het dorpshart – dit is een woning die je niet mag missen.

Pluspunten op een rij:
• 137 m² comfortabel wonen
• 3 volwaardige slaapkamers
• Grote, lichte woonkamer met open keuken
• Zonnig dakterras van ca. 30 m²
• Gelegen in het centrum van Prinsenbeek

Pak deze kans en maak van deze bovenwoning jouw thuis!
Ideaal tezamen met het gebruik van de commerciële ruimte op de begane grond om wonen en werken te combineren!

Indeling bovenwoning

Begane grond

Via een trap aan de buitenkant kom je op het royale dakterras met toegang tot de bovenwoning.

Eerste verdieping:

Bij aankomst op deze lichte verdieping ervaar je direct de vele m2.
De hal leidt je naar de trapkast met meterkast, naar het toilet, woonkamer met open keuken en trapopgang naar de tweede verdieping.

De semi-open keuken tref je aan de achterzijde. Volop werkruimte, een 4-pits gaskookplaat, afzuigkap, koelkast en diverse kasten bieden een heerlijke ruimte om te kokkerellen en toch in contact te blijven met de visite of het gezin. Een schuifpui biedt toegang tot het dakterras van maar liefst 30 m2.

In de woonkamer tref je vloerbedekking, stucwanden en spuitwerkplafond en door de fijne raampartijen aan de voorzijde ervaar je hier goede lichtinval

Tweede verdieping:

De overloop biedt toegang tot 3 slaapkamers, de badkamer en cv/bergruimte.

De slaapkamers zijn voorzien van vloerbedekking, stucwanden en spuitwerkplafond.

De ruime badkamer is deels betegeld en biedt een bad, douche, toilet en wastafel.

In de cv/bergruimte tref je de opstelling van de cv (Nefit, bouwjaar 2012) en bergruimte.

Afmetingen
Voor de afmetingen en indeling zie onze gedetailleerde plattegrond en brochure.

Bijzonderheden:
- 3 slaapkamers;
- veel m2 woonplezier;
- energielabel B;
- geheel voorzien van dubbele beglazing;
- aan de achterzijde een groot dakterras;
- de kosten van de VvE moeten nog worden bepaald daar het complex tot heden in handen
was van 1 eigenaar is de VvE niet actief geweest;
- parkeren doe je gratis op de openbare parkeerplekken rondom het appartement;
- gunstig gelegen rondom het centrum;
- uitvalswegen zijn op korte afstand bereikbaar;
- openbaar vervoer en station Breda-Prinsenbeek op loopafstand;
- keurig onderhouden doch gedateerd en daarmee geheel naar eigen smaak af te werken.

Bieden
Ben je enthousiast en wil je een bod uitbrengen op deze woning? In jouw eigen Move account, welke vrijgegeven wordt op het moment dat we een bezichtigingsafspraak inplannen, heb je de mogelijkheid een bod te doen.
Op deze manier wordt het bod direct toegevoegd aan het biedlogboek zodat we aan de verplichting van het biedlogboek voldoen.

Biedlogboek
Het biedlogboek geeft inzicht in alle biedingen die op een woning zijn gedaan. Hierdoor wordt het verkoopproces transparanter. Zodra een woning definitief verkocht is (en er geen voorbehouden meer gelden) heb je als bieder inzage in alle gedane biedingen.
In het biedlogboek is het gedane bod inzichtelijk met daarbij aangegeven of dit bod met of zonder voorbehoud financiering en-/of bouwkundige keuring is.
Andere eventuele voorbehouden en voorwaarden zijn niet zichtbaar.

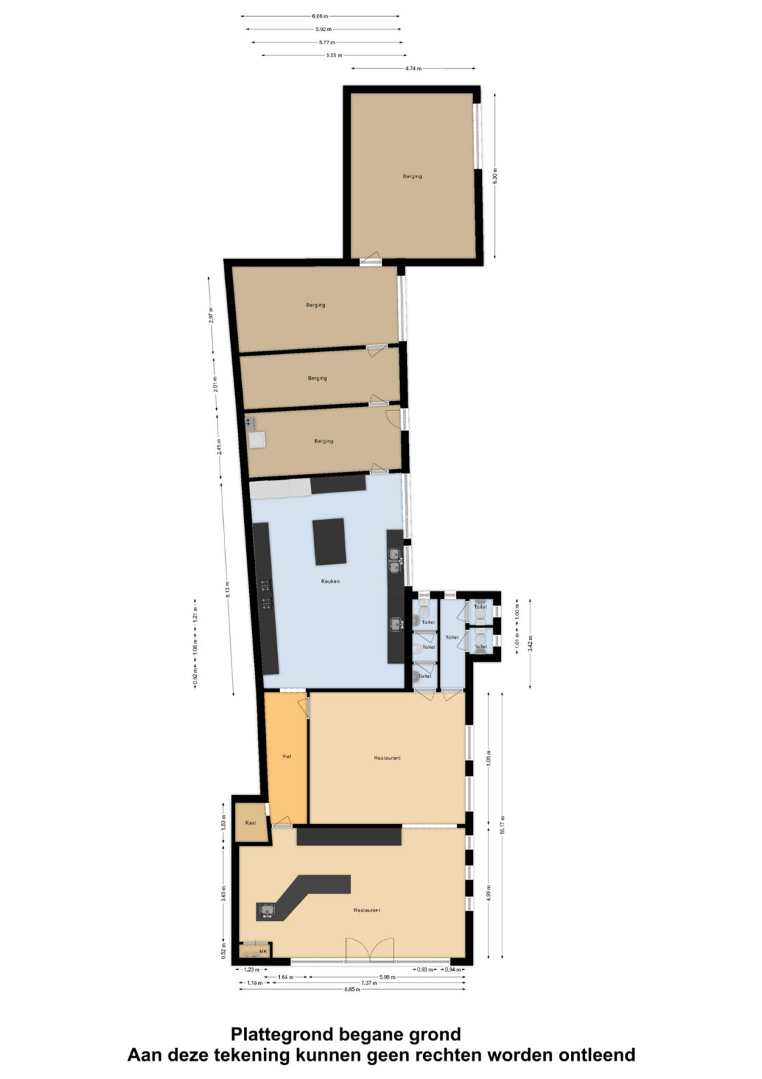
Commerciële ruimte begane grond

In het hart van ons dorp staat een stukje lokale historie te koop:
Een ruim pand en door de bestemming centrumdoeleinden zijn er vele mogelijkheden.

Altijd al gedroomd van je eigen succesvolle zaak? Grijp dan nu je kans! In het bruisende centrum van Prinsenbeek staat dit ruime pand te koop – een echte kans voor ondernemers met smaak!

Wat krijg je?

Een totaaloppervlakte van maar liefst 219 m2
Veel bergruimte, dus voldoende plek voor voorraden en apparatuur.

Waarom jij dit niet wilt missen:
Toplocatie in het centrum
Goede indeling
Ruimte om te groeien

Laat deze unieke kans niet aan je neus voorbijgaan!
Interesse?
Neem snel contact met ons op voor meer informatie of een vrijblijvende bezichtiging.
Je nieuwe avontuur begint hier – midden in Prinsenbeek, midden in de actie.

Algemeen:
Je treft dit object op een prachtige locatie in het centrum van Prinsenbeek.
Op korte afstand tref je een groot parkeerterrein waar je gratis kunt parkeren.

Prinsenbeek ligt nabij de A16 en heeft een regionale functie ten aanzien van Prinsenbeek, Haagse Beemden, Etten-Leur, Breda en overige omliggende plaatsen.
De uitvalswegen alsook het NS-station Breda/Prinsenbeek zijn binnen enkele minuten bereikbaar.

Het perceel is recent door het kadaster anders ingedeeld. De akte van splitsing wordt momenteel aan de nieuw situatie aangepast.

Indeling:

Bij binnenkomst kom je gelijk in een mooie ruimte voorzien van plavuizen en systeemplafond.
Aan de achterzijde kom je in diverse bergingen, technische ruimte met aansluiting wasapparatuur, cv en koelingen.

Maatvoering:
Globaal kent het pand de navolgende maten:
Totaal aantal: circa 219 m²

Opleveringsniveau:
Het pand wordt u aangeboden in de huidige staat, onder meer voorzien van:
- toiletruimte;
- gedeelte van de plafondverlichting;
- cv;
- plavuizen.

Alle roerende zaken verwant aan de horeca-functie worden voor oplevering verwijderd en zijn dus geen onderdeel van het verkochte.

Gebruik / Bestemming:
Het pand is gelegen in bestemmingsplan “Kom Prinsenbeek” en kent binnen dit plan de bestemming “centrumdoeleinden”.

Parkeren:
Openbare parkeerplaats op de Markt in Prinsenbeek en in de winkelstraat.

Vraagprijs:
600.000,= k.k.

Bouwjaar:
1960

Aanvaarding in overleg.

Inventaris:

Woning:
De commerciële ruimte wordt tezamen met de bovenwoning verkocht. Afzonderlijke koop is niet mogelijk.

Kenmerken

Type object
Appartement
Woonlaag
2
Bouwjaar
1985
Inhoud
1.250 m3
Overige inpandige ruimte
0 m2
Externe bergruimte
0 m2
Tuinoppervlakte
30 m2
Aantal kamers
4
Aantal slaapkamers
3
Aantal badkamers
1
Buitenruimte
Zonneterras
Energielabel
B
Isolatie
Dakisolatie, Muurisolatie, Dubbelglas

Kan ik je
ergens mee
helpen?

Kan ik je
ergens mee
helpen?

Contact
Portretfoto Mona van de Wiel
20 jaar ervaring
Nr. 1 makelaar Prinsenbeek
Betrouwbaar en betrokken
Persoonlijke aandacht